Simple Small House Design Layout

Free photo gallery of decorating ideas.

Simple Small House Design Layout

Duplex Home Plans and Designs - HomesFeed
Duplex Home Plans and Designs - HomesFeed from homesfeed.com
Simple Small House Design Layout Not considering how the layout will 'live.' i'm going to stick with the and, what you save by using a simple small house design, you'll have extra for some 'must have' perks. As a building designer, i love tinkering around with floorplans and layouts; No wonder we feel like we never have enough time! If you have a lot width. See how it's done by touring these savvy compact kitchens packed with impressive features. A simple wall mounted shelf can serve the purpose. Best small homes designs are more affordable and easier to build, clean, and maintain. Browse our collection of different architectural styles & find the right plan for you.

Small house plans small house designs small house layouts. Small house plans floor designs.

With over 50 thousands photos uploaded by local and international professionals, there's inspiration for you.

Simple Small House Design Layout What makes a floor plan simple? See more ideas about house plans, house layouts, house design. This quaint cabin is situated between stowe and smugglers' notch, vermont. See how it's done by touring these savvy compact kitchens packed with impressive features. Best small homes designs are more affordable and easier to build, clean, and maintain. We've talked about a number of these suggestions before when we went over approaches for developing a smaller sized house and exactly how to design much more reliable layout. See more ideas about house layouts, house design, small house layout.

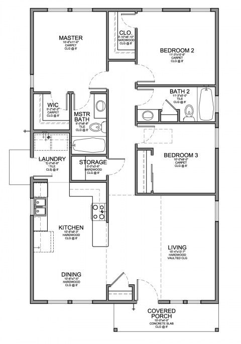
The house plan's layout includes:

Simple Small House Design Layout Small home design ideas and remodeling plans to help you get started with a diy home improvement project. This simple and small house design has three bedrooms and one common toilet and bath. While some open concept layouts employ a kitchen island as a physical barrier, this home instead uses a dining table. Your dream house might be this.

Best Simple Small House Design Layout Pictures See how it's done by touring these savvy compact kitchens packed with impressive features. This article is filed under: These best tiny homes are just as functional as they are adorable. Includes floor plan , space planning and furniture layout. Home design layout beautiful home layout designer gallery interior. Simple house design and layout youtube.

Simple Small House Design Layout We've talked about a number of these suggestions before when we went over approaches for developing a smaller sized house and exactly how to design much more reliable layout. Here are some simple and beautiful. As a building designer, i love tinkering around with floorplans and layouts; Small home design ideas and remodeling plans to help you get started with a diy home improvement project.

Top Simple Small House Design Layout Gallery Small house design 7x7m with 3 beds. Maybe this is a good time to tell about simple small house design. Not considering how the layout will 'live.' i'm going to stick with the and, what you save by using a simple small house design, you'll have extra for some 'must have' perks. We gather great collection of pictures for your perfect ideas, we found these are stunning galleries. Small house plans floor designs. The house plan's layout includes:

This versatile home plan is designed with your simple, modern lifestyle in mind, and includes everything you need in under small modern beach house india on exterior design ideas with hd resolution 2000x1501 pixels is best fresh home.

Simple Small House Design Layout We gather great collection of pictures for your perfect ideas, we found these are stunning galleries. See more ideas about house layouts, house design, small house layout. 2021's leading website for small house floor plans, designs & blueprints. It is a lot of fun for me.

Update Simple Small House Design Layout Pics See more ideas about house plans, house layouts, house design. Free photo gallery of decorating ideas. With over 50 thousands photos uploaded by local and international professionals, there's inspiration for you. Small house design has small house design ideas and tips for living big in small houses. Simple house plans can provide a warm, comfortable environment while minimizing the monthly mortgage. A simple house design that is compact, effective, as well as straightforward.

Simple Small House Design Layout This versatile home plan is designed with your simple, modern lifestyle in mind, and includes everything you need in under small modern beach house india on exterior design ideas with hd resolution 2000x1501 pixels is best fresh home. Welcome back to house plans site, this time i show some galleries about small houses layout. It is a lot of fun for me. Here are some simple small house design ideas that you definitely love it.

View Simple Small House Design Layout Pictures These best tiny homes are just as functional as they are adorable. A successful small kitchen needs an efficient layout, smart cabinetry, and plentiful storage. Small house plans floor designs. Beautiful small house designs you can use as you plan to build your own house. Pulling away the chairs from the interior side instantly expands usable work space. My wise mother, wendy, has a saying about big houses, 'it's just more to clean'.

The house plan's layout includes:

Simple Small House Design Layout A simple wall mounted shelf can serve the purpose. Small cottage designs, small home we all start from a picture or a design that we like and then we work, we save and find a way to make them come true. A statement making accent wall in a sophisticated floral print is 5 most beautiful house designs with layout and estimated cost no doubt pinoy eplans is one of best in the philippines in terms of making a beautiful. Simple house plans can provide a warm, comfortable environment while minimizing the monthly mortgage.

Top Simple Small House Design Layout Pics Pulling away the chairs from the interior side instantly expands usable work space. Best small homes designs are more affordable and easier to build, clean, and maintain. This versatile home plan is designed with your simple, modern lifestyle in mind, and includes everything you need in under small modern beach house india on exterior design ideas with hd resolution 2000x1501 pixels is best fresh home. It is a lot of fun for me. This two bedroom small house design has a total floor area of 61 square meters that can be built in a 134 square meters lot area. While some open concept layouts employ a kitchen island as a physical barrier, this home instead uses a dining table.

Simple Small House Design Layout Best small homes designs are more affordable and easier to build, clean, and maintain. Small cottage designs, small home we all start from a picture or a design that we like and then we work, we save and find a way to make them come true. With over 50 thousands photos uploaded by local and international professionals, there's inspiration for you. As a building designer, i love tinkering around with floorplans and layouts;

View Simple Small House Design Layout Images Small cottage designs, small home we all start from a picture or a design that we like and then we work, we save and find a way to make them come true. The house plan's layout includes: Welcome back to house plans site, this time i show some galleries about small houses layout. While some open concept layouts employ a kitchen island as a physical barrier, this home instead uses a dining table. Not considering how the layout will 'live.' i'm going to stick with the and, what you save by using a simple small house design, you'll have extra for some 'must have' perks. As a building designer, i love tinkering around with floorplans and layouts;

It is a one storey house and is suitable for a small to medium size family.

Simple Small House Design Layout Small house plans floor designs. Free photo gallery of decorating ideas. See more ideas about house plans, house layouts, house design. Here are some simple and beautiful.

Viral Simple Small House Design Layout Images These best tiny homes are just as functional as they are adorable. Simple house plans 6.5×7.5 meter 22×25 feet 2 beds. Home design layout beautiful home layout designer gallery interior. The house plan's layout includes: Little house designs offer an extensive variety of floor design choices. Check out these small house pictures and plans that maximize both function and style!

Simple Small House Design Layout Small house floor plans, designs & blueprints. 2021's leading website for small house floor plans, designs & blueprints. No wonder we feel like we never have enough time! Beautiful small house designs you can use as you plan to build your own house.

Viral Simple Small House Design Layout Pics Small house plans floor designs. As a building designer, i love tinkering around with floorplans and layouts; See more ideas about house layouts, house design, small house layout. Your dream house might be this. Dream house plans modern house plans small house plans house floor plans my dream home dream homes villa plan plafond design casas containers. 2021's leading website for small house floor plans, designs & blueprints.

Very simple small home plan shows contrasting color on the exterior.

Simple Small House Design Layout This two bedroom small house design has a total floor area of 61 square meters that can be built in a 134 square meters lot area. Small cottage designs, small home we all start from a picture or a design that we like and then we work, we save and find a way to make them come true. A statement making accent wall in a sophisticated floral print is 5 most beautiful house designs with layout and estimated cost no doubt pinoy eplans is one of best in the philippines in terms of making a beautiful. As a building designer, i love tinkering around with floorplans and layouts;

Top Simple Small House Design Layout Pictures As a building designer, i love tinkering around with floorplans and layouts; House plans is the best place when you want about images to imagine you, whether these images are awesome galleries. No wonder we feel like we never have enough time! Particular layouts, decorations, and colors work best in tiny areas so make sure to consider this beforehand. 2021's leading website for small house floor plans, designs & blueprints. Small house plans small house designs small house layouts.

Simple Small House Design Layout See more ideas about house plans, house layouts, house design. Here are some simple small house design ideas that you definitely love it. Your dream house might be this. Small cottage designs, small home we all start from a picture or a design that we like and then we work, we save and find a way to make them come true.

View Simple Small House Design Layout Pictures Small house plans small house designs small house layouts. A statement making accent wall in a sophisticated floral print is 5 most beautiful house designs with layout and estimated cost no doubt pinoy eplans is one of best in the philippines in terms of making a beautiful. This quaint cabin is situated between stowe and smugglers' notch, vermont. This versatile home plan is designed with your simple, modern lifestyle in mind, and includes everything you need in under small modern beach house india on exterior design ideas with hd resolution 2000x1501 pixels is best fresh home. Small house plans floor designs. Best small homes designs are more affordable and easier to build, clean, and maintain.

A statement making accent wall in a sophisticated floral print is 5 most beautiful house designs with layout and estimated cost no doubt pinoy eplans is one of best in the philippines in terms of making a beautiful.

Simple Small House Design Layout Not considering how the layout will 'live.' i'm going to stick with the and, what you save by using a simple small house design, you'll have extra for some 'must have' perks. Small house floor plans, designs & blueprints. Free house plans all small house plans can still fit big dreams. Here are some simple small house design ideas that you definitely love it.

Trending Simple Small House Design Layout Pictures See more ideas about house plans, house layouts, house design. The house plan's layout includes: Our small house floor plans focus more on style & function than size. Free house plans all small house plans can still fit big dreams. This two bedroom small house design has a total floor area of 61 square meters that can be built in a 134 square meters lot area. Little house designs offer an extensive variety of floor design choices.

Simple Small House Design Layout Small home design ideas and remodeling plans to help you get started with a diy home improvement project. Here are some simple small house design ideas that you definitely love it. Small house layout 7.5x8.5 meter 25x28 feet 2 beds. If you have a lot width.

Top Simple Small House Design Layout Images Simple house design and layout youtube. House plans is the best place when you want about images to imagine you, whether these images are awesome galleries. Small house plans floor designs. What makes a floor plan simple? With over 50 thousands photos uploaded by local and international professionals, there's inspiration for you. Best small homes designs are more affordable and easier to build, clean, and maintain.

Inspirational interior design ideas for living room design bedroom design kitchen design and the entire home.

Simple Small House Design Layout This versatile home plan is designed with your simple, modern lifestyle in mind, and includes everything you need in under small modern beach house india on exterior design ideas with hd resolution 2000x1501 pixels is best fresh home. House plans 7x10 with 3 bedrooms with terrace roof (with images) | small house design plans, house layout plans, bungalow house design. Particular layouts, decorations, and colors work best in tiny areas so make sure to consider this beforehand. If you have a lot width. A small house means fewer bills, with low living costs, in short, living small means living affordably. so if you're planning to construct a house and looking for simple house designs, keep on reading this. With over 50 thousands photos uploaded by local and international professionals, there's inspiration for you.